СКИДКИ И АКЦИИ ДИЗАЙН КВАРТИР КАЛЬКУЛЯТОР О КОМПАНИИ ГАРАНТИИ
Можно совместить санузел, сделать раздельные комнаты из смежных , сделать нишу, и многое другое. Доверьтесь профессионалам с большим опытом ремонта квартир в Москве.
Что можно, а что нельзя
И тут возникает много вопросов на тему ,что можно а что нельзя. Давайте попробуем в этом разобраться. Самое главное и приятное-без вашего согласия никто во время ремонта квартиры до ее ремонта и после не имеет права войти в Вашу квартиру и тем более, сверять параметры вашей квартиры с техпаспортом.
Можно сделать ремонт и не оформляя перепланировку но только если она не противоречит санитарно-техническим и строительным нормам , а также если в ближайшее время
Для всех этир процедур придется оформить государственную регистрацию перепланировки квартиры.
Запрещено
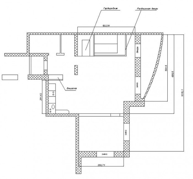
1. Ломать несущие стены, а также нарушать их целостность делать проемы и прочее. Есть некоторые особенности определения несущих и капитальных стен , а это нуружние стены,стены отделяющие квартиры друг от друга, стена выходящая на лестничную клетку, кроме того стены отличаются толщиной и составом.При ремонте квартиры и перепланировке всегда сверяйтесь с техническим планом квартиры, несущие стены на плане обозначаются более толстыми линиями.и отмечены специальной штриховой разметкой как на этой картинке.

2. Переносить санузел, нельзя размещать туалет, ванну или душевую над жилыми комнатами соседей, но можно законно расширить санузел за счет площадей коридора, кладовки, прихожей и т.д.

3. Нельзя убирать или затруднять вентиляцию ,переносить газовые трубы или стояки с водой. а также объединять жилые и нежилые помещения как на фото.

Можно
А теперь о том ,что делать можно но все равно любой вариант перепланировки квартир в Москве нужно согласовывать с соответствующими инстанциями
1. Можно ломать не несущие стены в любых проявлениях,можно демонтировать и переносить возводить новые стены во время ремонта в квартире.Но все это проводится в пределах нагрузки на перекрытия дома, эту работу лучше доверить специалистам.

2. Расширять санузел в типовых домах с помощью площади коридора и кладовки , установить джакузи, снеся старую сантехкабину.

Читайте также статью о перепланировке в новостройке
Примеры ремонтов квартир от Дешевыйремон.рф сроки и стоимость
Сравните наши расценки и сроки с конкурентами и убедитесь, что мы даем лучшие цены на ремонт в Москве и Подмосковье!
|
ЖК СКОЛКОВСКИЙ Трехкомнатная квартира 90м2 Сроки 2.5 месяца Стоимость - 480 000 |
ОДИНЦОВО Новостройка 100м2 Сроки 3 месяца Стоимость -520 000 |
ЖК ВИДНЫЙ БЕРЕГ Новостройка под сдачу 40м2 Сроки 45 дней Стоимость 225 000 |
ПУТИЛКОВО Санузел Под ключ 5м2 Сроки 15 дней Стоимость 45 000 |
|
|
![]() |
![]() |
![]() |
|
ЖК МИШИНО ХИМКИ Двухкомнатная квартира 60м Сроки 60 дней Цена -320 000 |
НОВОСЛОБОДСКАЯ Офис под ключ 200м2 Сроки 30 дней Цена -200 000 |
Одинцово Новостройка 110 м2 эконом Сроки 2.5 месяца Цена -370 000 |
МОСКОВСКИЕ ВОДНИКИ Однушка под покраску (евро) Сроки 2 месяца Цена -280 000 |
|
МЫТИЩИ Двухкомнатная 50м2 Сроки 2 месяца Цена -350 000 |
МОСКОВСКАЯ ОБЛАСТЬ Трехкомнатная люкс класс Сроки 6 месяцев Цена -650 000 |
СОВХОЗ МОСКОВСКИЙ Однушка (евро) Сроки 2 месяца Цена -310 000 |
КРЫЛАТСКОЕ Элитная квартира под ключ Сроки 3 месяца Цена -580 000 |
|
КУНЦЕВО Супер эконом 38м2 Сроки 1 месяц Цена -120 000 |
ПЕРЕДЕЛКИНО БЛИЖНЕЕ Ванная комната 5 м2 10 дней Цена -38 000 |
МОСКОВСКИЙ Новостройка 70м2 Сроки 2 месяца Цена -280 000 |
АПРЕЛЕВКА Ванная под ключ Срок-1 месяц Цена -80 000 |
|
ПОСЕЛОК НЕМЧИНОВКА Дом 210 м2 Сроки 5 месяцев Цена -600 000 |
Новый Арбат Элитная отделка 170м2 Сроки 4 месяца Цена -980 000 |
М. Курская Сталинка с демонтажем 80м2 Сроки 4 месяца Цена -580 000 |
Комунарка ремонт и дизайн Ремонт таунхауса340м2 (объект в работе) Цена -1 740 000 |
НИЗКИЕ ЦЕНЫ НА РЕМОНТ СМОТРИТЕ ВИДЫ И ЦЕНЫ:
|
Новостройка стандарт от 3700 за м2
|
Капитальный вторички от 4500 за м2
|
Косметический ремонт от 2500 за м2
|
Люкс отделка от 7000 за м2
|
РАБОТАЕМ ОФИЦИАЛЬНО СТРОГО ПО ДОГОВОРУ С ДОКУМЕТАЦИЕЙ
Соблюдаем закон, по приезду на объект наш сотрудник составляет подробную смету и график выполнения далее подписывается договор, оплата происходит по двусторонему акту приемке после выполнения без предоплаты! По завершению ремонта выписывается гарантия на фирменном бланке компании, дающее право клиенту на гарантийное обслуживание объекта в течении трех лет!
| СМЕТА | ДОГОВОР | ГРАФИК | АКТ ПРИЕМКИ |
![]() |
![]() |
![]() |
![]() |

![]()
МЫ В INSTAGRAM
МЫ VKONTAKTE
ОТЗЫВЫ О НАС
ТЕКУЩИЕ РАБОТЫ
ОНЛАЙН-КАЛЬКУЛЯТОР
|
О НАШЕЙ КОМПАНИИ |
ПОПУЛЯРНЫЕ СТРАНИЦЫ |
НАШИ КОНТАКТЫ |
| Занимаемся отделкой и ремонтом уже 15 лет с 2005 года | Дизайн интерьера | |
| Все наши мастера опытные и сплоченные люди, нам можно |
Ремонт офисов | |
| доверить любой ремонт, будь это квартира, коттедж, офис | Ремонт ванной | |
|
ресторан, кафе, детский сад и тд. под ключ. |
Демонтаж | |
| Оказываем бесплатные консультации по вопросам отделки и | Удаленный ремонт | |
|
строительства. |
Таунсхаусы | Киевское шоссе, Бизнес Парк Румянцево, |
| по всей Москве и Московской Области. | Ремонт новостроек | корпус А, подъезд 4 Офис 413 |
ПРИНИМАЕМ ЗАКАЗЫ В МОСКВЕ И МОСКОВСКОЙ ОБЛАСТИ СМОТРИТЕ КАРТУ РЕМОНТОВ:
Компания осуществляет доставку стройматериала по Москве, выполняем отделочные работы, (САО, ВАО, ЗАО, ЮАО, ЦАО и Зеленограде), а также по всей Московской области Балашиха, Щербинка, Одинцово, Химки, Люберцы, Жуковский, Раменское, Домодедово, Видное и другие города московского региона.
ПОДПИШИТЕСЬ НА НАШУ ГРУППУ:
Всем подписчикам группы скидка 5%
© "Дешевыйремонт.рф" 2005-2024г.-Ремонт квартир и отделка в Москве, коттеджей, таунхаусов, нежилых помещений и дизайн. Тексты на сайте являются авторским правом.Копирование и использование запрещено.